サイトトップへこのカテゴリの一覧へ

G 3136:2012  

(1) 

2019年7月1日の法改正により名称が変わりました。まえがきを除き,本規格中の「日本工業規格」を「日本産業規格」に読み替えてください。 

目 次 

ページ 

序文 ··································································································································· 1 

1 適用範囲························································································································· 1 

2 引用規格························································································································· 1 

3 種類及び記号並びに適用厚さ ······························································································ 1 

4 化学成分························································································································· 2 

5 熱処理及び記号 ················································································································ 2 

5.1 熱処理 ························································································································· 2 

5.2 熱処理の記号 ················································································································ 2 

6 炭素当量及び溶接割れ感受性組成 ························································································ 3 

6.1 炭素当量及び溶接割れ感受性組成の計算············································································· 3 

6.2 鋼材(熱加工制御を行った鋼板を除く。)の炭素当量及び溶接割れ感受性組成 ··························· 3 

6.3 熱加工制御を行った鋼板の炭素当量及び溶接割れ感受性組成 ·················································· 4 

7 機械的性質 ······················································································································ 4 

7.1 降伏点又は耐力,引張強さ,降伏比1) 及び伸び ··································································· 4 

7.2 シャルピー吸収エネルギー ······························································································ 6 

7.3 厚さ方向特性 ················································································································ 6 

8 超音波探傷試験特性 ·········································································································· 6 

9 形状,寸法,質量及びその許容差 ························································································ 7 

10 外観 ····························································································································· 9 

11 試験 ····························································································································· 9 

11.1 分析試験 ····················································································································· 9 

11.2 機械試験 ····················································································································· 9 

11.3 厚さ方向特性試験 ········································································································ 10 

11.4 超音波探傷試験 ··········································································································· 10 

12 検査 ···························································································································· 10 

13 再検査 ························································································································· 11 

14 表示 ···························································································································· 11 

15 報告 ···························································································································· 11 

附属書JA(参考)JISと対応国際規格との対比表 ······································································ 12 

G 3136:2012  

(2) 

2019年7月1日の法改正により名称が変わりました。まえがきを除き,本規格中の「日本工業規格」を「日本産業規格」に読み替えてください。 

まえがき 

この規格は,工業標準化法第14条によって準用する第12条第1項の規定に基づき,一般社団法人日本

鉄鋼連盟(JISF)から,工業標準原案を具して日本工業規格を改正すべきとの申出があり,日本工業標準

調査会の審議を経て,経済産業大臣が改正した日本工業規格である。 

これによって,JIS G 3136:2005は改正され,この規格に置き換えられた。 

なお,平成25年1月19日までの間は,工業標準化法第19条第1項等の関係条項の規定に基づくJISマ

ーク表示認証において,JIS G 3136:2005によることができる。 

この規格は,著作権法で保護対象となっている著作物である。 

この規格の一部が,特許権,出願公開後の特許出願又は実用新案権に抵触する可能性があることに注意

を喚起する。経済産業大臣及び日本工業標準調査会は,このような特許権,出願公開後の特許出願及び実

用新案権に関わる確認について,責任はもたない。 

2019年7月1日の法改正により名称が変わりました。まえがきを除き,本規格中の「日本工業規格」を「日本産業規格」に読み替えてください。 

日本工業規格          JIS 

G 3136:2012 

建築構造用圧延鋼材 

Rolled steels for building structure 

序文 

この規格は,2006年に第1版として発行されたISO 24314を基とし,技術的内容を変更して作成した日

本工業規格である。 

なお,この規格で側線又は点線の下線を施してある箇所は,対応国際規格を変更している事項である。

変更の一覧表にその説明を付けて,附属書JAに示す。 

適用範囲 

この規格は,建築構造物に用いる熱間圧延鋼材(以下,鋼材という。)について規定する。 

注記 この規格の対応国際規格及びその対応の程度を表す記号を,次に示す。 

ISO 24314:2006,Structural steels−Structural steels for building with improved seismic resistance−

Technical delivery conditions(MOD) 

なお,対応の程度を表す記号“MOD”は,ISO/IEC Guide 21-1に基づき,“修正している”

ことを示す。 

引用規格 

次に掲げる規格は,この規格に引用されることによって,この規格の規定の一部を構成する。これらの

引用規格は,その最新版(追補を含む。)を適用する。 

JIS G 0320 鋼材の溶鋼分析方法 

JIS G 0404 鋼材の一般受渡し条件 

JIS G 0415 鋼及び鋼製品−検査文書 

注記 対応国際規格:ISO 10474,Steel and steel products−Inspection documents(IDT) 

JIS G 0416 鋼及び鋼製品−機械試験用供試材及び試験片の採取位置並びに調製 

JIS G 0901 建築用鋼板及び平鋼の超音波探傷試験による等級分類及び判定基準 

JIS G 3192 熱間圧延形鋼の形状,寸法,質量及びその許容差 

JIS G 3193 熱間圧延鋼板及び鋼帯の形状,寸法,質量及びその許容差 

JIS G 3194 熱間圧延平鋼の形状,寸法,質量及びその許容差 

JIS G 3199 鋼板,平鋼及び形鋼の厚さ方向特性 

JIS Z 2241 金属材料引張試験方法 

JIS Z 2242 金属材料のシャルピー衝撃試験方法 

種類及び記号並びに適用厚さ 

鋼材の種類は5種類とし,その記号及び適用厚さは,表1による。 

background image

G 3136:2012  

2019年7月1日の法改正により名称が変わりました。まえがきを除き,本規格中の「日本工業規格」を「日本産業規格」に読み替えてください。 

表1−種類の記号 

単位 mm 

種類の記号 

製品形状 

適用厚さ 

SN400A 

鋼板,鋼帯,形鋼及び平鋼 

 6以上 100以下 

SN400B 

SN400C 

16以上 100以下 

SN490B 

 6以上 100以下 

SN490C 

16以上 100以下 

 受渡当事者間の協定によって,超音波探傷試験を行った鋼板及び
平鋼には,“-UT”の記号を,この表の種類の記号(5.2の熱処理の
記号を含む。)の末尾に付加して表す。 

例 SN400B-UT 

SN490BN-UT 

化学成分 

鋼材は,11.1によって試験を行い,その溶鋼分析値は,表2による。 

表2−化学成分 

単位 % 

種類の記号 

厚さ 

Si 

Mn 

SN400A 

6 mm 以上 

0.24以下 

− 

− 

0.050以下 

0.050以下 

100 mm 以下 

SN400B 

6 mm 以上 

0.20以下 

0.35以下 

0.60〜1.50 

0.030以下 

0.015以下 

50 mm 以下 

50 mm を超え 

0.22以下 

100 mm 以下 

SN400C 

16 mm 以上 

0.20以下 

0.35以下 

0.60〜1.50 

0.020以下 

0.008以下 

50 mm 以下 

50 mm を超え 

0.22以下 

100 mm 以下 

SN490B 

6 mm 以上 

0.18以下 

0.55以下 

1.65以下 

0.030以下 

0.015以下 

50 mm 以下 

50 mm を超え 

0.20以下 

100 mm 以下 

SN490C 

16 mm 以上 

0.18以下 

0.55以下 

1.65以下 

0.020以下 

0.008以下 

50 mm 以下 

50 mm を超え 

0.20以下 

100 mm 以下 

必要に応じて,この表以外の合金元素を添加してもよい。 

熱処理及び記号 

5.1 

熱処理 

鋼材には,必要に応じて,焼ならし又は焼戻しを行ってもよい。 

また,受渡当事者間の協定によって,熱加工制御又は適切な熱処理を行ってもよい。 

5.2 

熱処理の記号 

鋼材に熱処理を行った場合,熱処理を示す記号は,次による。 

background image

G 3136:2012  

2019年7月1日の法改正により名称が変わりました。まえがきを除き,本規格中の「日本工業規格」を「日本産業規格」に読み替えてください。 

なお,熱処理の記号を付記する場合は,表1の種類の記号の末尾に付記する。 

a) 協定によって,鋼材に焼ならしを行う場合 

b) 協定によって,鋼材に焼戻しを行う場合 

c) 鋼材に熱加工制御を行う場合 

TMC 

d) 鋼材に適切な熱処理を行う場合 

受渡当事者間の協定による。 

炭素当量及び溶接割れ感受性組成 

6.1 

炭素当量及び溶接割れ感受性組成の計算 

炭素当量及び溶接割れ感受性組成の計算は,次による。 

a) 炭素当量の計算は,11.1の溶鋼分析値を用い,式(1)による。 

なお,計算式に規定された元素は,添加の有無にかかわらず,計算に用いる。 

14V

4

Mo

5Cr

40

Ni

24

Si

6

Mn

C

eq

+

+

+

+

+

+

=

C

 ··········································· (1) 

ここに, 

Ceq: 炭素当量(%) 

b) 溶接割れ感受性組成の計算は,11.1の溶鋼分析値を用い,式(2)による。 

なお,計算式に規定された元素は,添加の有無にかかわらず,計算に用いる。 

B

5

10

V

15

Mo

20

Cr

60

Ni

20

Cu

20

Mn

30

Si

C

CM

+

+

+

+

+

+

+

+

=

P

 ······························ (2) 

ここに, 

PCM: 溶接割れ感受性組成(%) 

6.2 

鋼材(熱加工制御を行った鋼板を除く。)の炭素当量及び溶接割れ感受性組成 

鋼材(熱加工制御を行った鋼板を除く。)の炭素当量及び溶接割れ感受性組成は,次による。 

a) 炭素当量は,表3による。 

b) 受渡当事者間の協定によって,炭素当量の代わりに溶接割れ感受性組成を適用してもよい。この場合

の溶接割れ感受性組成は,表4による。 

表3−鋼材の炭素当量(熱加工制御を行った鋼板は除く。) 

単位 % 

種類の記号 

厚さ 

40 mm以下 

40 mm を超え 

100 mm 以下 

SN400B 

0.36以下 

0.36以下 

SN400C 

SN490B 

0.44以下 

0.46以下 

SN490C 

表4−鋼材の溶接割れ感受性組成(熱加工制御を行った鋼板は除く。) 

単位 % 

種類の記号 

溶接割れ感受性組成 

SN400B 

0.26以下 

SN400C 

SN490B 

0.29以下 

SN490C 

background image

G 3136:2012  

2019年7月1日の法改正により名称が変わりました。まえがきを除き,本規格中の「日本工業規格」を「日本産業規格」に読み替えてください。 

6.3 

熱加工制御を行った鋼板の炭素当量及び溶接割れ感受性組成 

熱加工制御を行った鋼板の炭素当量及び溶接割れ感受性組成は,次による。 

a) 受渡当事者間の協定によって,熱加工制御を行った鋼板の炭素当量は,表5による。 

b) 受渡当事者間の協定によって,炭素当量の代わりに溶接割れ感受性組成を適用してもよい。この場合

の溶接割れ感受性組成は,表6による。 

表5−熱加工制御を行った鋼板の炭素当量 

単位 % 

種類の記号 

厚さ 

50 mm以下 

50 mm を超え 

100 mm 以下 

SN490B 

0.38以下 

0.40以下 

SN490C 

表6−熱加工制御を行った鋼板の溶接割れ感受性組成 

単位 % 

種類の記号 

厚さ 

50 mm以下 

50 mm を超え 

100 mm 以下 

SN490B 

0.24以下 

0.26以下 

SN490C 

機械的性質 

7.1 

降伏点又は耐力,引張強さ,降伏比1) 及び伸び 

鋼材は,11.2によって試験を行い,その降伏点又は耐力,引張強さ,降伏比及び伸びは,表7による。 

注1) 降伏比は,引張強さに対する降伏点又は耐力の割合。 

background image

G 3136:2012  

   

表7−降伏点又は耐力,引張強さ,降伏比及び伸び 

種類の 

記号 

降伏点又は耐力 

N/mm2 

引張強さ 

N/mm2 

降伏比 

伸び % 

1A号 

試験片 

1A号 

試験片 

4号 

試験片 

鋼材の厚さa) 

mm 

鋼材の厚さa) 

mm 

鋼材の厚さa) 

mm 

6以上 

12未満 

12以上 
16未満 

16 

16を超え 

40以下 

40を超え 

100以下 

6以上 

12未満 

12以上 
16未満 

16 

16を超え 

40以下 

40を超え 

100以下 

6以上 

16以下 

16を超え 

50以下 

40を超え 

100以下 

SN400A 235以上 235以上 

235以上 235以上 215以上 

400以上 
510以下 

− 

− 

− 

− 

− 

17以上 

21以上 

23以上 

SN400B 

235以上 
355以下b) 

235以上 
355以下b) 

235以上 
355以下 

215以上 
335以下 

18以上 

22以上 

24以上 

235以上 

− 

80以下c) 80以下c) 80以下 

80以下 

SN400C 

235以上 
355以下b) 

235以上 
355以下 

215以上 
335以下 

該当なし 該当なし 

該当なし 該当なし 80以下c) 80以下 

80以下 

SN490B 

325以上 
445以下b) 

325以上 
445以下b) 

325以上 
445以下 

295以上 
415以下 490以上 

610以下 

17以上 

21以上 

23以上 

325以上 

− 

80以下c) 80以下c) 80以下 

80以下 

SN490C 

325以上 
445以下b) 

325以上 
445以下 

295以上 
415以下 

該当なし 該当なし 

該当なし 該当なし 80以下c) 80以下 

80以下 

注記 1 N/mm2=1 MPa 
注a) 形鋼の場合は,鋼材の厚さは,次による。 

1) H形鋼は,表14のt2の寸法とする。 
2) 山形鋼,球平形鋼及びT形鋼は,表13のt又はt2の寸法とする。 
3) I形鋼及び溝形鋼は,表13のt1の寸法とする。 

b) 表14のt1が9 mm以下のH形鋼は,降伏点又は耐力の上限は適用しない。 

c) 表14のt1が9 mm以下のH形鋼は,降伏比の上限を85 %とする。 

3

G

 3

1

3

6

2

0

1

2

2019年7月1日の法改正により名称が変わりました。まえがきを除き、本規格中の「日本工業規格」を「日本産業規格」に読み替えてください。 

background image

G 3136:2012  

2019年7月1日の法改正により名称が変わりました。まえがきを除き,本規格中の「日本工業規格」を「日本産業規格」に読み替えてください。 

7.2 

シャルピー吸収エネルギー 

厚さ12 mmを超える表8に示す鋼材は,11.2によって試験を行い,そのシャルピー吸収エネルギーは,

表8による。この場合,シャルピー吸収エネルギーは,3個の試験片の平均値とし,JIS G 0404の9.6(組

試験の結果の評価)によって判定する。 

表8−シャルピー吸収エネルギー 

種類の記号 

試験温度a) 

℃ 

シャルピー 

吸収エネルギー 

試験片 

及び 

試験片採取方向 

SN400B 

27以上 

Vノッチ 

圧延方向b) 

SN400C 

SN490B 

SN490C 

注a) 受渡当事者間の協定によって,これらの試験温度より低い温度で

試験を行う場合は,その試験温度に置き換えてもよい。 

b) 受渡当事者間の協定によって,圧延直角方向での試験を行う場合

には,注文者の承認があれば,圧延方向試験を省略してもよい。 

7.3 

厚さ方向特性 

厚さ16 mm以上100 mm以下の表9に示す鋼材は,11.3によって試験を行い,その厚さ方向特性は表9

による。 

表9−厚さ方向特性 

種類の記号 

鋼材の厚さ 

mm 

絞り 

3個の試験値の平均値 

個々の試験値 

SN400C 

16以上 100以下 

25以上 

15以上 

SN490C 

超音波探傷試験特性 

SN400C及びSN490Cの厚さ16 mm以上の鋼板及び平鋼は,11.4によって試験を行い,その判定は表10

による。SN400B及びSN490Bの厚さ13 mm以上の鋼板及び平鋼は,受渡当事者間の協定によって超音波

探傷試験特性を適用してもよい。その場合,試験は,11.4によって行い,その判定は表10によるものとし,

種類の記号の末尾(5.2の熱処理の記号を含む。)に“-UT”を付記する。 

表10−超音波探傷試験特性 

種類の記号 

鋼板及び平鋼の厚さ 

mm 

判定 

SN400B 

13以上 

100以下 

JIS G 0901の判定基準の
等級Yによる。 

SN400C 

16以上 

100以下 

SN490B 

13以上 

100以下 

SN490C 

16以上 

100以下 

background image

G 3136:2012  

2019年7月1日の法改正により名称が変わりました。まえがきを除き,本規格中の「日本工業規格」を「日本産業規格」に読み替えてください。 

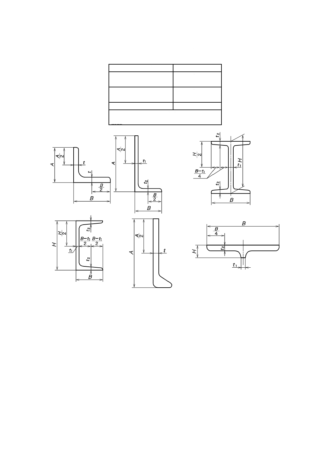
形状,寸法,質量及びその許容差 

鋼材の形状,寸法,質量及びその許容差は,JIS G 3192,JIS G 3193又はJIS G 3194による。ただし,

厚さの許容差は,次による。また,鋼板及び鋼帯のカットエッジの場合の幅,並びに鋼板の長さの許容差

は,特に指定がない限りJIS G 3193の許容差Aによる。 

a) 鋼板及び鋼帯の厚さの許容差は,表11による。 

b) 平鋼の厚さの許容差は,表12による。 

c) 形鋼の厚さの許容差は,表13及び表14による。 

表11−鋼板及び鋼帯の厚さの許容差 

単位 mm 

厚さ 

幅 

1 600未満 

1 600以上 
2 000未満 

2 000以上 
2 500未満 

2 500以上 
3 150未満 

3 150以上 
4 000未満 

4 000以上 
5 000未満 

6.00 以上 

6.30 未満 

+0.70 

+0.90 

+0.90 

+1.20 

+1.20 

− 

6.30 以上 

10.0 未満 

+0.80 

+1.00 

+1.00 

+1.30 

+1.30 

+1.50 

 10.0 以上 

16.0 未満 

+0.80 

+1.00 

+1.00 

+1.30 

+1.30 

+1.70 

 16.0 以上 

25.0 未満 

+1.00 

+1.20 

+1.20 

+1.60 

+1.60 

+1.90 

 25.0 以上 

40.0 未満 

+1.10 

+1.30 

+1.30 

+1.70 

+1.70 

+2.10 

 40.0 以上 

63.0 未満 

+1.30 

+1.60 

+1.60 

+1.90 

+1.90 

+2.30 

 63.0 以上 100 

未満 

+1.50 

+1.90 

+1.90 

+2.30 

+2.30 

+2.70 

 100 

+2.30 

+2.70 

+2.70 

+3.10 

+3.10 

+3.50 

マイナス側の許容差は0.3 mmとする。 
厚さの測定箇所は,ミルエッジの鋼帯及び鋼帯からの切板の場合は,その縁から25 mm以上内側の任意の

点,カットエッジの鋼帯及び鋼帯からの切板の場合は,その縁から15 mm以上内側の任意の点とする。また,
圧延のままの鋼板(耳付鋼板)の場合は,幅切断予定線から内側の任意の点,カットエッジの鋼板の場合は,
その縁から15 mm以上内側の任意の点とする。 

表12−平鋼の厚さの許容差 

単位 mm 

厚さ 

許容差 

6.0 以上 

12 未満 

+0.5 

12 以上 

25 未満 

+1.1 

25 以上 

40 未満 

+1.4 

40 以上 

100 以下 

+2.1 

 マイナス側の許容差は0.3 mmとする。 

background image

G 3136:2012  

2019年7月1日の法改正により名称が変わりました。まえがきを除き,本規格中の「日本工業規格」を「日本産業規格」に読み替えてください。 

表13−山形鋼,I形鋼,溝形鋼,球平形鋼及びT形鋼の厚さの許容差 

単位 mm 

厚さ(t,t2) 

許容差 

6.0 以上 

16 未満 

+0.9 

−0.3 

16 以上 

40 未満 

+1.3 

−0.7 

40 以上 

100 以下 

±1.5 

 記号A,B,H,t1の許容差は,JIS G 3192の
表3による。 

background image

G 3136:2012  

2019年7月1日の法改正により名称が変わりました。まえがきを除き,本規格中の「日本工業規格」を「日本産業規格」に読み替えてください。 

表14−H形鋼の厚さの許容差 

単位 mm 

厚さ(t2) 

許容差 

6.0 以上 

16 未満 

+1.7 

−0.3 

16 以上 

40 未満 

+2.3 

−0.7 

40 以上 100 以下 

+2.5 

−1.5 

 記号B,H,t1の許容差は,JIS G 3192の表4
による。 

10 外観 

鋼材の外観は,JIS G 3192の箇条9(外観),JIS G 3193の箇条7(外観)又はJIS G 3194の10.(外観)

による。 

11 試験 

11.1 分析試験 

分析試験は,次による。 

a) 分析試験の一般事項 分析試験の一般事項及び溶鋼分析試料の採り方は,JIS G 0404の箇条8(化学

成分)による。 

b) 分析方法 溶鋼分析方法は,JIS G 0320による。 

11.2 機械試験 

11.2.1 機械試験の一般事項 

機械試験の一般事項は,JIS G 0404の箇条7(一般要求)及びJIS G 0404の箇条9(機械的性質)によ

る。ただし,供試材の採り方は,JIS G 0404の7.6(試験片採取条件及び試験片)のA類とし,試験片の

数及び採取位置は,次による。 

a) 引張試験片の数 引張試験片の数は,次による。 

1) 鋼板及び平鋼 同一溶鋼に属し,最大厚さが最小厚さの2倍以内のものを一括して一組とし,引張

試験片を1個採取する。ただし,一組の質量が50 tを超える場合は,引張試験片を2個採取する。

この場合,鋼板1枚で50 tを超えるときは,引張試験片の数は,鋼板1枚から1個とする。 

2) 鋼帯及び鋼帯からの切板 同一溶鋼に属し,同一厚さのものを一括して一組とし,引張試験片を1

10 

G 3136:2012  

2019年7月1日の法改正により名称が変わりました。まえがきを除き,本規格中の「日本工業規格」を「日本産業規格」に読み替えてください。 

個採取する。ただし,一組の質量が50 tを超える場合は,引張試験片を2個採取する。 

3) 形鋼 同一溶鋼及び同一断面形状に属し,最大厚さが最小厚さの2倍以内のものを一括して一組と

し,引張試験片を1個採取する。ただし,一組の質量が50 tを超える場合は,引張試験片を2個採

取する。 

4) 熱処理を行った鋼材 熱処理を行った鋼材の試験片の数は,同一溶鋼に属し,同一熱処理条件ごと

に,1),2)及び3)による。 

b) 衝撃試験片の数 熱処理を行わない鋼材は,同一溶鋼に属する鋼材ごとに,熱処理を行った鋼材は,

同一溶鋼及び同一熱処理条件に属する鋼材ごとに,その最大厚さの鋼材から供試材1個を採り,これ

から試験片を圧延方向に3個採取する。ただし,形鋼は同一断面形状ごとによる。 

c) 引張試験片の採取位置 引張試験片の採取位置は,JIS G 0416による。ただし,鋼板,鋼帯及び平鋼

の試験片の中心は,幅の縁から幅の1/4又はそれに近い位置とする。 

d) 衝撃試験片の採取位置 衝撃試験片の採取位置は,JIS G 0416による。ただし,鋼板,鋼帯及び平鋼

の試験片の中心は,幅の縁から幅の1/4又はそれに近い位置とする。また,鋼板の板厚方向採取位置

は,厚さ28 mm以下についてはJIS G 0416の図A.11 a)とし,厚さ28 mm超えについてはJIS G 0416

の図A.11 b)とする。試験片が所定の位置から採れない場合には,それに近い位置とする。 

11.2.2 試験片 

引張試験片及び衝撃試験片は,次による。 

a) 引張試験片は,JIS Z 2241の1A号又は4号試験片による。 

b) 衝撃試験片は,JIS Z 2242のVノッチ試験片による。この場合,試験片切欠き部の切欠きの長さ方向

は,圧延面に垂直とする。 

11.2.3 試験方法 

引張試験及び衝撃試験の方法は,次による。 

a) 引張試験方法は,JIS Z 2241による。 

b) 衝撃試験方法は,JIS Z 2242による。 

11.2.4 引張試験片が規定の寸法どおりに採れない場合の引張試験 

引張試験片が規定の寸法どおりに採れない場合の引張試験の実施,その値などについては,受渡当事者

間の協定による。 

11.3 厚さ方向特性試験 

厚さ方向特性試験の方法は,JIS G 3199による。 

11.4 超音波探傷試験 

超音波探傷試験の方法は,JIS G 0901による。 

12 検査 

検査は,次による。 

a) 検査の一般事項は,JIS G 0404による。 

b) 化学成分は,箇条4に適合しなければならない。 

c) 炭素当量又は溶接割れ感受性組成は,箇条6に適合しなければならない。 

d) 機械的性質は,箇条7に適合しなければならない。 

e) 超音波探傷試験特性は,箇条8に適合しなければならない。 

f) 

形状,寸法,質量及びその許容差は,箇条9に適合しなければならない。 

11 

G 3136:2012  

2019年7月1日の法改正により名称が変わりました。まえがきを除き,本規格中の「日本工業規格」を「日本産業規格」に読み替えてください。 

g) 外観は,箇条10に適合しなければならない。 

13 再検査 

再検査は,次による。 

a) 引張試験で合格にならなかった鋼材は,JIS G 0404の9.8(再試験)によって再試験を行い,合否を決

定してもよい。 

b) 衝撃試験が,JIS G 0404の9.6(組試験の結果の評価)で合格とならなかった鋼材は,JIS G 0404の

9.8(再試験)によって,再試験を行って合否を決定してもよい。 

c) 厚さ方向特性試験における再検査は,JIS G 3199の7.4(追加試験)による。 

d) 機械試験で合格とならなかった鋼材は,熱処理又は再熱処理を行った後,改めて機械試験を行い,合

否を判定してもよい。 

14 表示 

検査に合格した鋼材は,鋼材ごと又は1結束ごとに,次の項目を適切な方法で表示する。ただし,受渡

当事者間の協定によって,項目の一部を省略してもよい。 

a) 種類の記号(5.2の熱処理の記号及び箇条8の受渡当事者間による超音波探傷試験を示す記号を含 

む。)。 

b) 溶鋼番号又は検査番号 

c) 寸法。寸法の表示は,JIS G 3192の箇条4(寸法の表し方),JIS G 3193の箇条3(寸法の表し方)及

びJIS G 3194の4.(寸法の表し方)による。 

d) 結束ごとの数量又は質量(鋼板及び鋼帯の場合) 

e) 製造業者名又はその略号 

15 報告 

JIS G 0404の箇条13(報告)による。製造業者は,JIS G 0415の表1(検査文書の総括表)の記号2.3

(受渡試験報告書)又は3.1.B(検査証明書3.1.B)によって,注文者へ提出しなければならない。 

なお,化学成分は,表2以外の合金元素を添加した場合は,添加した合金元素の含有率を成績表に付記

する。また,炭素当量又は溶接割れ感受性組成が規定されている場合は,それらの計算式に含まれる合金

元素の含有率を報告しなければならない。 

background image

附属書JA 

(参考) 

JISと対応国際規格との対比表 

JIS G 3136:2012 建築構造用圧延鋼材 

ISO 24314:2006,Structural steels−Structural steels for building with improved 
seismic resistance−Technical delivery conditions 

(I)JISの規定 

(II) 
国際規格
番号 

(III)国際規格の規定 

(IV)JISと国際規格との技術的差異の箇条
ごとの評価及びその内容 

(V)JISと国際規格との技術的差
異の理由及び今後の対策 

箇条番号
及び題名 

内容 

箇条番号 

内容 

箇条ごと
の評価 

技術的差異の内容 

1 適用範
囲 

建築構造物用鋼板,
鋼帯,形鋼及び平鋼 

一致 

2 引用規
格 

3 種類及
び記号並
びに適用
厚さ 

5種類を規定。 

4種類を規定。 

変更 

ISO規格は,JISの2種類とそ
の他の2種類を含む。 

ISO規格は,JIS及びその他の規
格の共存規格。JISの規定内容を
反映している。 

4 化学成
分 

C,Si,Mn,P及び
Sを規定。その他は
添加した場合に報
告。 

JISの規定に加えてCu,
Ni,Cr,Moの上限値を規
定。 

変更 

JISは,5元素を規定し,その
他の合金元素も添加可と明記。 

JISは,炭素当量及び溶接割れ感
受性組成の上限値規定で,実質的
にその他の合金元素の規定とな
っている。 

5 熱処理
及び記号 

協定によって,鋼材
に熱処理を行った
場合の熱処理記号
を規定。 

熱処理記号の表示を規
定。N,QT,MT 

削除 

JISは,QT材を規定していな
い。 

耐震性鋼材として国内では降伏
比の高いQT材は規定していな
い。 

6 炭素当
量又は溶
接割れ感
受性組成 

JISは,WES(社団
法人日本溶接協会
規格)式の炭素当量
及び溶接割れ感受
性組成を規定。 

ISO規格は,IIW(国際溶
接学会)規格の炭素当量
と溶接割れ感受性組成を
規定。 

変更 

炭素当量式が,JISはWES式,
ISO規格はIIW式。ただし,
実質的な規定は同等。 

JISは,日本で定着しているWES
式にて規定。技術的概念は,同じ。 
ISO 630-1の改正検討で,IIW以外
の炭素当量式の使用も認められ
ることを日本から提案し,明記さ
れることとなった。 

     

3

G

 3

1

3

6

2

0

1

2

2019年7月1日の法改正により名称が変わりました。まえがきを除き、本規格中の「日本工業規格」を「日本産業規格」に読み替えてください。 

background image

(I)JISの規定 

(II) 
国際規格
番号 

(III)国際規格の規定 

(IV)JISと国際規格との技術的差異の箇条
ごとの評価及びその内容 

(V)JISと国際規格との技術的差
異の理由及び今後の対策 

箇条番号
及び題名 

内容 

箇条番号 

内容 

箇条ごと
の評価 

技術的差異の内容 

7 機械的
性質 

引張特性,衝撃特
性,板厚方向引張特
性(Cグレードだけ)
を規定。 

引張特性,衝撃特性を規
定。板厚方向引張特性は,
オプション。 

変更 

JISで板厚方向特性を規定して
いるのは,ISO規格で規定して
いないJIS独自の種類。一方,
ISOは,高YPグレードを規定。 

ISO規格の4種類中の2種類は,
JISと一致しており,共存的規定
内容になっている。 

8 超音波
探傷試験
特性 

高グレードの4種類
についてこの試験
実施を規定。 

4種類について実施。 

変更 

JISは,超音波試験方法及び判
定基準としてJIS G 0901に拠
っている。 

技術的概念は,同じ。 

9 形状,寸
法,質量及
びその許
容差 

JISの寸法・許容差
に関する規格を引
用。 

寸法・許容差に関する
ISO規格を引用。 

変更 

JIS,ISO規格ともそれぞれの
体系の中の規格を引用。 

ISO規格の引用規格のほかに,受
渡当事者間の協定でJISもそのま
ま使えるように,対応するISO規
格を改正中。 

10 外観 

JIS G 3192,JIS G 
3193,JIS G 3194の
外観を引用。 

ISO 7788,ISO 20723によ
る。 

変更 

ISO規格は,選択肢として表面
きず除去部の局部的な板厚不
足を認めているが,JISは認め
ていない。 

JISの規定をISOに提案。 

11.1 分析
試験 

JIS G 0404の箇条8
を引用。溶鋼分析方
法は,JIS G 0320を
引用。 

化学分析について国際規
格が存在しない場合は,
受渡当事者間の協定によ
る。 

変更 

分析方法は,JISを引用。 

JISの分析方法をISO規格に盛り
込むように進める。 

11.2 機械
試験 

JIS G 0404の箇条7
及び箇条9を引用。 
試験片の採取位置
は,JIS G 0416を引
用。 

試験単位: 
50 t又はその端数ごと。 
試験片の採取位置:ISO 
377を引用。 

変更 

試験ロットが,若干異なる。 
試験片の採取位置は,整合。 

試験片の採取位置は,整合してい
る。 

12 検査 

一致 

13 再検査 JIS G 0404による。  

ISO 404による。 

追加 

JISでは,受渡当事者間の協議
によって2個の再試験片とも
同一供試材から採取してもよ
い規定を追加。 

ISO規格の改正時に,JISの内容
を提案する。 

  

3

G

 3

1

3

6

2

0

1

2

2019年7月1日の法改正により名称が変わりました。まえがきを除き、本規格中の「日本工業規格」を「日本産業規格」に読み替えてください。 

background image

(I)JISの規定 

(II) 
国際規格
番号 

(III)国際規格の規定 

(IV)JISと国際規格との技術的差異の箇条
ごとの評価及びその内容 

(V)JISと国際規格との技術的差
異の理由及び今後の対策 

箇条番号
及び題名 

内容 

箇条番号 

内容 

箇条ごと
の評価 

技術的差異の内容 

14 表示 

a) 種類の記号 
b) 溶鋼番号又は検

査番号 

c) 寸法 
d) 結束ごとの数量

又は質量 

e) 製造業者又はそ

の略号 

a) 種類の記号 
b) 製造業者又はその略

号 

c) 溶鋼番号又は検査番

号 

追加 

JISの方がISO規格に比べて規
定内容が多い。 

JISの表示法をISOに提案。 

15 報告 

一致 

JISと国際規格との対応の程度の全体評価:ISO 24314:2006,MOD 

注記1 箇条ごとの評価欄の用語の意味は,次による。 

  − 一致……………… 技術的差異がない。 
  − 削除……………… 国際規格の規定項目又は規定内容を削除している。 
  − 追加……………… 国際規格にない規定項目又は規定内容を追加している。 
  − 変更……………… 国際規格の規定内容を変更している。 

注記2 JISと国際規格との対応の程度の全体評価欄の記号の意味は,次による。 

  − MOD…………… 国際規格を修正している。 

3

G

 3

1

3

6

2

0

1

2

2019年7月1日の法改正により名称が変わりました。まえがきを除き、本規格中の「日本工業規格」を「日本産業規格」に読み替えてください。